Paul Duran
505.310.5566
$695,000

$695,000
505.310.5566
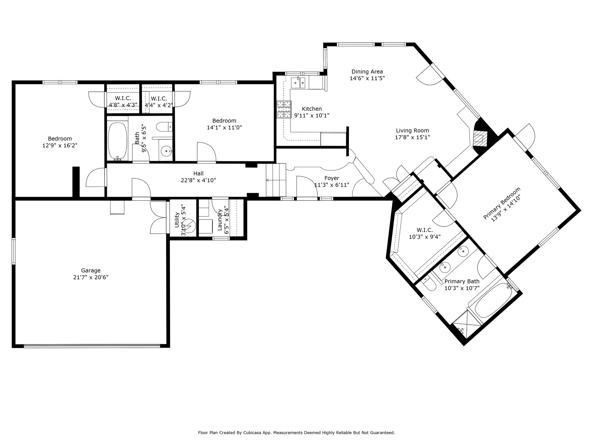
ADOBE HOME IN ELDORADO! Rarely offered in Eldorado, this true adobe home captures the essence of authentic Santa Fe style on 1.3 acres with expansive mountain views. Featuring 3 bedrooms and 2 baths, the residence is rich with Southwestern character, showcasing vigas, beams, and warm adobe walls throughout. A welcoming courtyard and garden provide a serene outdoor retreat, while radiant heating ensures comfort in every season.Set in the sought-after Eldorado community, residents enjoy miles of scenic trails, a community pool, tennis courts, and a vibrant community center--all just minutes from downtown Santa Fe. This rare adobe treasure combines timeless craftsmanship with modern livability, offering the best of both tradition and convenience in a setting that celebrates Northern New Mexico's natural beauty and community spirit.
Tara Woodruff
Keller Williams Realty